Грязевик абонентский Т34 Серия 4.903-10

Грязевик абонентский Т34 Серия 4.903-10

Грязевик абонентский ТС-569 Серия 5.903-13

Грязевик абонентский ТС-569 Серия 5.903-13

Устройство грязевика абонентского Т34, ТС-569

Устройство грязевика абонентского Т34, ТС-569

Фильтрующий элемент абонентского грязевика

Фильтрующий элемент абонентского грязевика

Воздушный кран. Грязевик Т34, ТС-569

Воздушный кран. Грязевик Т34, ТС-569

Дренажный кран. Грязевик Т34, ТС-569

Дренажный кран. Грязевик Т34, ТС-569

Фильтрующий элемент

Фильтрующий элемент

Грязевик абонентский Т34 и ТС-569

Грязевики абонентские Т34 по Серии 4.903-10 и ТС-569 по Серии 5.903-13 предназначены для очистки воды от крупных и средних взвешенных частиц - окалины, грата, песка, продуктов коррозии и других механических примесей.

Прайс-лист

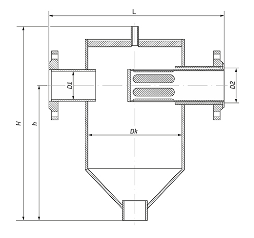
Грязевики абонентские представляет собой вертикальную емкость, внутри которой происходит фильтрация воды при помощи фильтрующего элемента. Фильтрующий элемент выполнен из нержавеющей стали. Фильтрация воды осуществляется за счет снижения скорости потока воды в корпусе грязевика. Грязевик устанавливается на линии трубопровода при помощи фланцевых соединений или при помощи сварки. В конструкции обоих грязевиков предусмотрено два крана. Верхний кран предназначен для стравливания воздуха при запуске грязевика в эксплуатацию. Нижний кран предназначен для удаления накопившихся загрязнений в дренажную систему.

Грязевики Т34 и ТС-569 используются на электростанциях, в котельных, элеваторных узлах, тепловых вводах зданий и сооружений, при фильтрации воды, в качестве первой ступени очистки в очистных сооружениях и перед технологическим оборудованием. Грязевики рассчитаны на рабочее давление 16-25 кгс/см² и рабочую температуру 200 °С.

Установка и обвязка грязевика должна быть произведена таким образом, чтобы обеспечивалась возможность осмотра, ремонта, очистки. Установка и эксплуатация данного оборудования должна проводиться специалистами, прошедшими соответствующий инструктаж. После установки грязевика необходимо произвести гидравлические испытания (опрессовку) системы. После этого производится промывка линии.

В процессе эксплуатации требуется контролировать гидравлическое сопротивление абонентского грязевика по показаниям манометров на линии трубопровода до и после грязевика. В случае превышения значения гидравлического сопротивления, указанного в паспорте, необходимо произвести разборку и очистку грязевика от накопившихся отложений. В случае выхода из строя фильтрующего элемента, его необходимо почистить или заменить.

Абонентские грязевики Т34 и грязевики ТС-569 не подлежат обязательной регистрации в органах Технадзора России. При этом эксплуатация грязевиков должна производиться в соответствии с «Правилами безопасной эксплуатации трубопроводов пара и горячей воды».

Как подобрать грязевик?

Подобрать грязевик можно в таблице типоразмеров. Для этого необходим диаметр трубопровода и давление внутри системы. Если у вас остались вопросы, наши специалисты помогут вам в подборе нужного оборудования. Средний изготовления партии - 3 дня.

Грязевик абонентский Т34. Паспорт.

Грязевик абонентский ТС-569. Паспорт.

 

Прайс-лист

Таблица 1. Грязевик абонентский Т34.00.00.000 Серия 4.903-10

Обозначение

Ду, мм

Ру, МПа

Dk

D1

D2

H

L

h

Масса, кг

Грязевик Т34.01.

40

1,6

159

45

57

340

344

260

15,8

Грязевик Т34.02.

50

1,6

159

57

76

390

363

290

19,0

Грязевик Т34.03.

65

1,6

219

76

89

470

423

340

28,7

Грязевик Т34.04.

80

1,6

219

89

108

505

423

375

32,2

Грязевик Т34.05.

100

1,6

325

108

133

610

523

450

59,2

Грязевик Т34.06.

125

1,6

325

133

159

670

523

470

67,3

Грязевик Т34.07.

150

1,6

426

159

194

750

645

550

96,7

Грязевик Т34.08.

175

1,6

426

194

219

825

667

600

111,4

Грязевик Т34.09.

200

1,6

530

219

273

950

847

700

184,7

Грязевик Т34.11.

40

2,5

159

45

57

340

344

260

16,8

Грязевик Т34.12.

50

2,5

159

57

76

390

363

290

19,4

Грязевик Т34.13.

65

2,5

219

76

89

470

423

340

29,7

Грязевик Т34.14.

80

2,5

219

89

108

505

423

375

34,7

Грязевик Т34.15.

100

2,5

325

108

133

610

523

450

65,5

Грязевик Т34.16.

125

2,5

325

133

159

670

523

470

74,6

Грязевик Т34.17.

150

2,5

426

159

194

750

645

550

108,6

Грязевик Т34.18.

175

2,5

426

194

219

825

667

600

125,7

Грязевик Т34.19.

200

2,5

530

219

273

950

847

700

212,7

 

Общий чертеж. Грязевик абонентский Т34 и ТС-569

Таблица 2. Грязевик абонентский ТС-569.00.000 Серия 5.903-13

Обозначение

Ду, мм

Ру, МПа

Dk

D1

D2

H

L

h

Q, т/ч

Масса, кг

Грязевик ТС-569.00.000

40

2,5

159

45

57

310

390

230

6,4

17

Грязевик ТС-569.00.000-01

50

2,5

159

57

76

360

390

260

10

19

Грязевик ТС-569.00.000-02

65

2,5

219

76

89

440

470

310

19

30

Грязевик ТС-569.00.000-03

80

2,5

219

89

108

475

480

345

26

35

Грязевик ТС-569.00.000-04

100

2,5

325

108

133

580

600

420

40

69

Грязевик ТС-569.00.000-05

125

2,5

325

133

159

640

610

440

63

79

Грязевик ТС-569.00.000-06

150

2,5

426

159

219

825

730

520

90

104

Грязевик ТС-569.00.000-07

200

2,5

530

219

273

1 055

870

670

170

196

Грязевик ТС-569.00.000-08

40

1,6

159

45

57

310

390

230

6,4

15

Грязевик ТС-569.00.000-09

50

1,6

159

57

76

360

390

260

10

17

Грязевик ТС-569.00.000-10

65

1,6

219

76

89

440

470

310

19

29

Грязевик ТС-569.00.000-11

80

1,6

219

89

108

475

480

345

26

32

Грязевик ТС-569.00.000-12

100

1,6

325

108

133

580

600

420

40

63

Грязевик ТС-569.00.000-13

125

1,6

325

133

159

640

610

440

63

74

Грязевик ТС-569.00.000-14

150

1,6

426

159

219

825

730

520

90

116

Грязевик ТС-569.00.000-15

200

1,6

530

219

273

1 055

870

670

170

208

Клиентам из Москвы доставка 1-2 дня

Закажите счет, отправив заявку на почту - zakaz@hunt-team.ru

Телефон отдела продаж: 8 (921) 930-50-20 (смс, WhatsApp, Viber)

Обращаем ваше внимание на то, что данный Интернет-сайт, носит исключительно информационный характер и ни при каких условиях не является публичной офертой, определяемой положениями Статьи 437 Гражданского кодекса Российской Федерации. Для получения подробной информации о стоимости продукции, пожалуйста, обращайтесь к менеджерам по продажам.